계단 표현¶
건물의 3D 모델에는 계단이 포함되어 있을 수 있습니다. 계단은 3D 모델과 BIM 모델에서 생성된 BIM 도면에서 볼 수 있습니다.
지원되는 BIM 파일: IFC 및 RVT.
계단 요소:
실행합니다
계단참
지원
난간
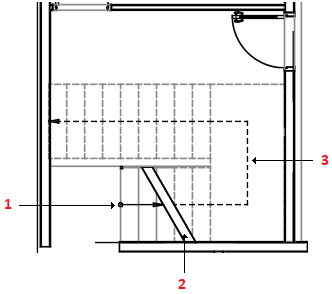
현재, 도면에서 계단의 표현은 다음을 포함합니다:
계단의 방향
파단 기호
보행선
BIM 도면의 계단 표시는 절단면의 위치에 따라 달라집니다. 파단 기호는 3D 모델의 절단면 위치를 표시합니다.
계단 발판과 절단 평면 위의 보행선은 파선으로 나타납니다.
계단 단판과 절단 평면 아래의 보행선은 실선으로 표시됩니다.

관련 항목