Merdivenlerin Gösterimi¶
Bir binanın 3B modelinde merdivenler olabilir. Hem 3B modelde hem de BIM modelinden oluşturulan BIM teknik resimlerinde merdivenler görünür.
Desteklenen BIM dosyaları: IFC ve RVT.
Bir merdivenin elemanları:
Çalıştır
İnişler
Destekler
Korkuluk
Şu anda, teknik resimlerde bir merdivenin gösterimi şunları kapsar:
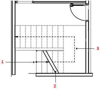
Merdivenin yönü
Kesme simgesi
Yürüyüş çizgisi
BIM teknik resimlerinde merdivenlerin görünümü, kesme düzleminin konumuna bağlıdır. Satır sonu sembolü, 3B modelden kesme düzleminin konumunu gösterir.
Kesme düzleminin üzerindeki merdiven basamakları ve yürüme çizgisi kesikli çizgiyle gösterilir
Kesme düzleminin altındaki merdiven basamakları ve yürüme çizgisi düz çizgiyle gösterilir

İlgili Konular