Représentation des escaliers¶
Le modèle 3D d’un bâtiment peut contenir des escaliers. Les escaliers sont visibles dans le modèle 3D, ainsi que dans les mises en plan BIM générées à partir du modèle BIM.
Fichiers BIM pris en charge : IFC et RVT.
Eléments d’un escalier :
Exécute
Paliers
Supports
Garde-corps
Pour le moment, dans les mises en plan, la représentation d’un escalier inclut :
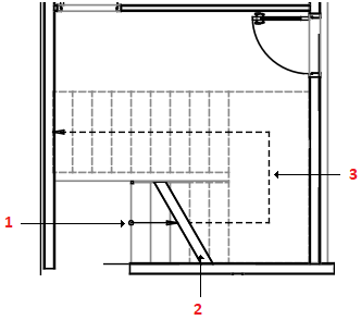
Direction de l’escalier
Symbole de coupure
Ligne de passage
L’apparence des escaliers dans les mises en plan BIM dépend de la position du plan de coupe. Le symbole de coupure indique la position du plan de coupe à partir du modèle 3D.
Les girons d’escalier et la ligne de passage au-dessus du plan de coupe apparaissent en pointillés
Les girons d’escalier et la ligne de passage sous le plan de coupe apparaissent avec une ligne pleine

Rubriques connexes