Rappresentazione delle scale¶
Un modello 3D di un edificio può contenere scale. Le scale sono visibili nel modello 3D e nei disegni BIM generati dal modello BIM.
File BIM supportati: IFC e RVT.
Elementi di una scala:
Esegue
Pianerottoli
Supporti
Ringhiera
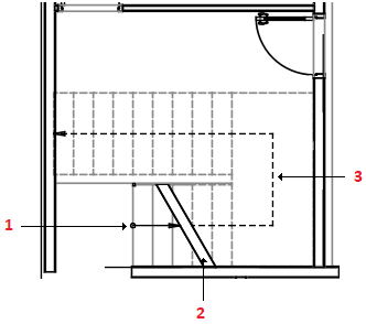
Al momento, nei disegni, la rappresentazione di una scala include:
Direzione della scala
Simbolo interruzione
Linea di camminamento
L’aspetto delle scale nei disegni BIM dipende dalla posizione del piano di taglio. Il simbolo di interruzione indica la posizione del piano di taglio rispetto al modello 3D.
I gradini e la linea di camminamento sopra il piano di taglio appaiono tratteggiati
I gradini e la linea di camminamento sotto il piano di taglio appaiono con una linea solida

Argomenti correlati