楼梯表示¶
建筑的 3D 模型可能包含楼梯。楼梯会显示在 3D 模型以及从 BIM 模型生成的 BIM 工程图中。
支持的BIM文件:IFC和RVT。
楼梯的元素:
运行
平台
支持
栏杆
目前,在图纸中,楼梯的表示包括:
楼梯方向
中断符号
漫游线
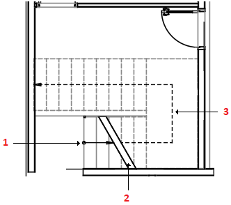
BIM 工程图中的楼梯外观取决于分割平面的位置。中断符号显示 3D 模型中的分割平面位置。
楼梯踏步和剖切面上方的行走线显示为虚线
楼梯踏步和切割平面以下的步行线以实线显示。

相关主题
使用 BIM 模型
建筑的 3D 模型可能包含楼梯。楼梯会显示在 3D 模型以及从 BIM 模型生成的 BIM 工程图中。
支持的BIM文件:IFC和RVT。
楼梯的元素:
运行
平台
支持
栏杆
目前,在图纸中,楼梯的表示包括:
楼梯方向
中断符号
漫游线
BIM 工程图中的楼梯外观取决于分割平面的位置。中断符号显示 3D 模型中的分割平面位置。
楼梯踏步和剖切面上方的行走线显示为虚线
楼梯踏步和切割平面以下的步行线以实线显示。

相关主题
使用 BIM 模型