Darstellung von Treppen¶
Ein 3D-Modell eines Gebäudes kann Treppen enthalten. Treppen sind sowohl im 3D-Modell als auch in BIM-Zeichnungen, die aus dem BIM-Modell generiert werden, sichtbar.
Unterstützte BIM-Dateien: IFC und RVT.
Elemente einer Treppe:
Läufe
Anlandungen
Stützen
Geländer
Zurzeit umfasst die Darstellung einer Treppe in Zeichnungen:
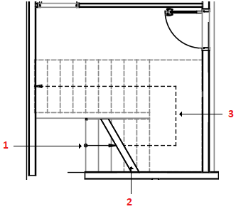
Richtung der Treppe
Bruchsymbol
Lauflinie
Das Aussehen von Treppen in BIM-Zeichnungen hängt von der Position der Schnittebene ab. Das Bruchsymbol zeigt die Position der Schnittebene im 3D-Modell an.
Treppenauftritte und die Lauflinie oberhalb der Schnittebene erscheinen gestrichelt
Treppenauftritte und die Lauflinie unterhalb der Schnittebene erscheinen als durchgezogene Linie

Verwandte Themen