Representação de escadas¶
Um modelo 3D de um edifício pode conter escadas. As escadas são visíveis no modelo 3D, bem como em desenhos BIM que são gerados a partir do modelo BIM.
Arquivos BIM suportados: IFC e RVT.
Elementos de uma escada:
Executa
Patamares
Suportes
Corrimão
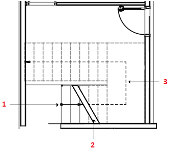
No momento, em desenhos, a representação de uma escada inclui:
Direção da escada
Símbolo de quebra
Linha de caminhada
O aparecimento de escadas em desenhos BIM depende da posição do plano de corte. O símbolo de quebra mostra a posição do plano de corte do modelo 3D.
Os degraus da escada e a linha de caminhada acima do plano de corte aparecem tracejados
Os degraus da escada e a linha de caminhada abaixo do plano de corte aparecem com linha sólida

Tópicos relacionados