Reprezentace schodů¶
3D model budovy může obsahovat schody. Schody jsou zobrazeny ve 3D modelu i ve výkresech BIM, které jsou z modelu BIM vygenerovány.
Podporované BIM soubory: IFC a RVT.
Prvky schodiště:
Spouští
Podesty
Podporuje
Zábradlí
V současné době sestává reprezentace schodiště ve výkresech z následujících prvků:
Směr schodů
Symbol přerušení
Čára chůze
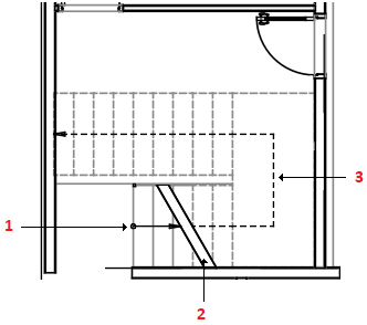
Vzhled schodů ve výkresech BIM závisí na poloze roviny řezu. Symbol přerušení ukazuje polohu roviny řezu 3D modelem.
Stupně a čára chůze nad rovinou řezu je zobrazena přerušovaně.
Stupně schodů a chodicí linie pod řeznou rovinou se zobrazují plnou čarou

Příbuzná témata