Reprezentacja schodów¶
Model 3D budynku może zawierać schody. Schody są widoczne w modelu 3D, jak również na rysunkach BIM, które są generowane z modelu BIM.
Obsługiwane pliki BIM: IFC i RVT.
Elementy schodów:
Uruchamia
Spoczniki
Obsługuje
Barierka
Obecnie, na rysunkach, reprezentacja schodów zawiera:
Kierunek schodu
Symbol przerwania
Linia spacerowa
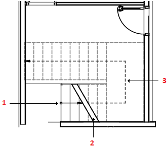
Wygląd schodów na rysunkach BIM zależy od położenia płaszczyzny cięcia. Symbol przerwania pokazuje położenie płaszczyzny cięcia z modelu 3D.
Stopnie schodów i linia chodu powyżej płaszczyzny cięcia są rysowane linią przerywaną.
Stopnie schodów i linia chodu poniżej płaszczyzny cięcia pojawiają się linią ciągłą.

Tematy powiązane