Представление лестницы¶
3D-модель здания может содержать лестницы. Лестницы отображаются в 3D-модели, а также на чертежах BIM, созданных на основе модели BIM.
Поддерживаемые файлы BIM: IFC и RVT.
Элементы лестницы:
Запускает
Площадки
Поддерживает
Ограждение
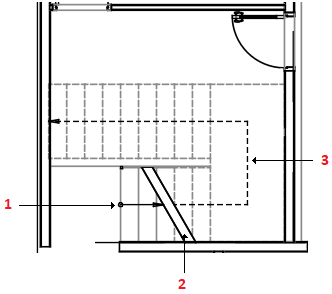
В настоящее время на чертежах представление лестницы включает в себя следующее:
Направление лестницы
Символ разрыва
Линия ходьбы
Внешний вид лестниц на чертежах BIM зависит от положения плоскости сечения. Символ разрыва показывает положение плоскости сечения из 3D-модели.
Лестничные ступени и осевая линия лестничного марша над плоскостью сечения отображаются пунктирной линией
Лестничные ступени и осевая линия лестничного марша над плоскостью сечения отображаются сплошной линией

Связанные разделы