樓梯表示¶
建物的 3D 模型可能包含樓梯。在 3D 模型以及 BIM 模型中產生的 BIM 工程圖中可以看到樓梯。
支援的 BIM 檔案:IFC 和 RVT。
樓梯的組成部分:
執行
平台
支援
欄杆
目前,在工程圖中,樓梯的表示方式包括:
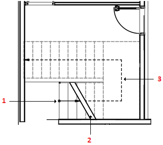
樓梯的方向
斷開符號
行走線
BIM 工程圖中樓梯的外觀取決於切割平面的位置。斷開符號會顯示 3D 模型的切割平面位置。
樓梯踏步和位於切割平面上方的步行線顯示為虛線
樓梯踏板和剖切平面下方的步行線以實線顯示

相關主題
使用 BIM 模型
建物的 3D 模型可能包含樓梯。在 3D 模型以及 BIM 模型中產生的 BIM 工程圖中可以看到樓梯。
支援的 BIM 檔案:IFC 和 RVT。
樓梯的組成部分:
執行
平台
支援
欄杆
目前,在工程圖中,樓梯的表示方式包括:
樓梯的方向
斷開符號
行走線
BIM 工程圖中樓梯的外觀取決於切割平面的位置。斷開符號會顯示 3D 模型的切割平面位置。
樓梯踏步和位於切割平面上方的步行線顯示為虛線
樓梯踏板和剖切平面下方的步行線以實線顯示

相關主題
使用 BIM 模型