階段のリプレゼンテーション¶
建物の 3D モデルに階段がある場合があります。階段は、3D モデル内、および BIM モデルから生成される BIM 図面に表示されます。
対応BIMファイル:IFCおよびRVT
階段の構成要素:
実行
ランディング
サポート
手すり
現時点では、図面では、階段の表現には、以下が含まれます:
階段の方向
破断記号
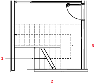
歩行線
BIM 図面内の階段の外観は、切断面の位置によって異なります。破断記号は、3D モデルからの切断面の位置を示します。
切断面より上にある段板と歩行線は、破線で表示されます
階段の踏面と切断平面より下の歩行線は実線で表示されます。

関連トピック